
The Eastern Lycoming Branch YMCA is expanding our facility to better serve more children, families, and seniors within our local community.
The YMCA is dedicated to offering programs and services that nurture every individual we serve — strengthening our community today and building a foundation for generations to come.
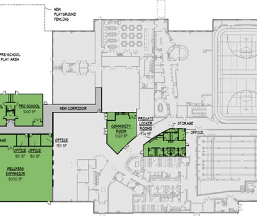
The Facility
The First Phase of this project will:
- Add 2,000 square feet of childcare space creating 2 additional classrooms allowing us to provide education and care for more children.
- Create THREE additional offices for childcare daily operations.
- Double the wellness area to include more space for free weights and strength training as well as functional training areas.
- Move the current Community Room to the old free weight room, and turning the Community Room into private showers/changing rooms.
There is also the possibility of 2 additional phases to this project in the future which include additional restrooms, a covered patio area, and another basketball court to meet the need for additional sports leagues and member programming.
The Impacts
In 2024 the Eastern Lycoming Branch YMCA served:
Served 180 Children & Youth through childcare programs including Preschool, School Age, and Summer day Camp. Children were given the skills and values needed to successfully transition into Kindergarten through our Preschool Program, had a safe space before & after school in our School Age Program, and experienced the adventures of Summer Day Camp!
40 Superstars participated in a movement class, now in its 16th year, for those with diverse abilities to develop motor skills, coordination, and strength along with making friends and having fun!
The LIVESTRONG at the YMCA Program supported 51 survivors to improve their strength and physical fitness, lessen the harshness of therapy side effects, develop relationships, and enhance their quality of life.
228 Individuals served through Community Outreach Initiatives.
2300 Members were able to lead healthier lifestyles, socialize with new friends, and become part of the Eastern Lycoming Branch YMCA.
The expansion will allow us to serve even more individuals and families within our community!
Sara's Story
Building a Brighter Future for My Children

"My children attend childcare at the Eastern Lycoming Branch YMCA and absolutely love the programs they offer! In the preschool program, each week they feature a new theme, and the children work on important skills to help them get ready for kindergarten. This year, my oldest also participated in summer day camp and is already excited to return. I’m so glad she was introduced to different sports and games, and even made friends from school. I feel completely confident that, while I’m at work, my kids are in the best of hands. The YMCA’s childcare programs, whether preschool or school age and summer day camp, incorporate educational activities that blend play, social–emotional learning, and core academics—an approach that’s incredibly valuable and stays with children throughout their lives. We feel fortunate to have these resources so close to home."
Jesse's Story
My Weight Loss Journey: From 410lbs to 190lbs

I was big my whole life. I played sports, lifted some, but never dedicated to getting in shape. In Nov 2021 I spent 18 days in the hospital, 8 of them intubated in the ICU with COVID pneumonia. At nearly 400lbs at 40 years old, odds were not in my favor — but God had other plans. Recovery was rough. I was weak, inflamed, and in pain. Dec 2022, I hit my highest weight ever: 410lbs. I started taking my dad to the Muncy Y for therapy after surgery — where we both worked on our recovery. I could barely walk 5 min. My lungs were scarred, my body hurt, and I was embarrassed watching others run and lift. But I kept showing up. “Closing my rings” on my watch became my daily challenge. Slowly, I was losing weight, walking longer, and completed a 5K on the treadmill after my first year. Mid-2024, I was down 80lbs, but stuck. I lost 30lbs after starting a modified carnivore diet and felt incredible. I stayed consistent — in the gym, during business trips. I ran in the Texas heat and hit hotel gyms. I hit my goal weight: 250lbs. Then I set a new goal —lose 200lbs total by my 2-year mark, which I met a day early! In May 2025, I ran the Broad Street 10-Miler in Philadelphia — without stopping —finishing in 1:45. Today, I’m maintaining 190lbs, wearing a size L instead of 5XL, and 32 pants instead of 46. I thank God for the strength, determination, and the support of my wife, Jessica, my family, friends, and the amazing people at the Y. 410lbs → 190lbs 5XL → L 46” → 32” If I can do it, so can you. 💪